寻乐吧全国信息论坛,51凤茶楼论坛网,逍遥阁论坛交流,快活林全国楼凤论坛

 
 
 
 
产品中心
 

 防火门窗系列
 
 ·防火门
 ·较大防火门
 ·防火窗
 ·防火卷帘门
 ·挡烟垂壁
 ·防火隔断
 消防供水系列
 
 ·消火栓
 ·水枪水炮
 ·水泵系统
 ·喷淋系统
 ·给水管路
 灭火救援系列
 
 ·灭火器
 ·较细干粉
 ·泡沫灭火
 ·气体灭火
 火灾报警系列
 
 ·感烟探测
 ·声光探测
 ·燃气探测
 ·火灾控制器
 ·控制模块
 ·消防电子
 器材装备系列
 
 ·栓箱系列
 ·应急照明
 ·个人防护
 ·防火堵涂料
 特种门窗系列
 
 ·特种钢门
 ·隔热防火门
 ·人防门
 ·配套设备
 ·指导价格

联系我们
 
电话:025-83997899
传真:025-56671585
手机:180 6161 5050
售后:159 5055 8388
网址:www.douyam.cn
地址:
南京市栖霞区迈皋桥创业园科技研发基地寅春路18号
 
 
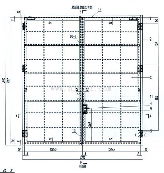
较大规格防火门  


较大规格防火门GFM3036
浏览次数:3128次


 

GFM3036是指宽度3000mm,高度3600mm钢质防火门;该规格主要设置于大规格消防门洞使用,一般设计安装在博物馆、体育场、图书馆、会议中心及大型工厂、发电站等场所。

 

3036规格属于较大规格防火门,产品采用双扇平板平开方式制作,门扇高度达到3500mm以上,无需摇头上亮,开启净洞口规格为2800mm*3500mm左右;限度满足使用场所需求。

 

宽度3米,高度3.6米防火门整体重量可达到上千斤,产品采用加厚钢板作为框架材料,内部加强,框扇结合处镶嵌防火膨胀条,在符合防火隔热性能的前提下,保障门体日常使用安全性。

 

较大防火门配备大功率专用防火五金件,保证了门体使用牢固稳定,产品表面采用喷塑烤漆工艺处理,颜色可选;也可采用304不锈钢材料;耐火等级可以达到乙级或甲级防火门规范标准。

 

较大防火门厂家相关推荐:

3米较大防火门

3.6米较大防火门


 

  已经是较后一条新闻  

版权所有:南京拓吉消防设备有限公司
地址:南京市浦口区滨江大道1号 电话:86-025-56671585
  苏ICP备12018850号