寻乐吧全国信息论坛,51凤茶楼论坛网,逍遥阁论坛交流,快活林全国楼凤论坛

 
 
 
 
²úÆ·ÖÐÐÄ
 

 ·À»ðÃÅ´°ÏµÁÐ
 
 ¡¤·À»ðÃÅ
 ¡¤½Ï´ó·À»ðÃÅ
 ¡¤·À»ð´°
 ¡¤·À»ð¾íÁ±ÃÅ
 ¡¤µ²ÑÌ´¹±Ú
 ¡¤·À»ð¸ô¶Ï
 Ïû·À¹©Ë®ÏµÁÐ
 
 ¡¤Ïû»ð˨
 ¡¤Ë®Ç¹Ë®ÅÚ
 ¡¤Ë®±Ãϵͳ
 ¡¤ÅçÁÜϵͳ
 ¡¤¸øË®¹Ü·
 Ãð»ð¾ÈԮϵÁÐ
 
 ¡¤Ãð»ðÆ÷
 ¡¤½Ïϸ¸É·Û
 ¡¤ÅÝÄ­Ãð»ð
 ¡¤ÆøÌåÃð»ð
 »ðÔÖ±¨¾¯ÏµÁÐ
 
 ¡¤¸ÐÑÌ̽²â
 ¡¤Éù¹â̽²â
 ¡¤È¼ÆøÌ½²â
 ¡¤»ðÔÖ¿ØÖÆÆ÷
 ¡¤¿ØÖÆÄ£¿é
 ¡¤Ïû·Àµç×Ó
 Æ÷²Ä×°±¸ÏµÁÐ
 
 ¡¤Ë¨ÏäϵÁÐ
 ¡¤Ó¦¼±ÕÕÃ÷
 ¡¤¸öÈË·À»¤
 ¡¤·À»ð¶ÂÍ¿ÁÏ
 ÌØÖÖÃÅ´°ÏµÁÐ
 
 ¡¤ÌØÖÖ¸ÖÃÅ
 ¡¤¸ôÈÈ·À»ðÃÅ
 ¡¤ÈË·ÀÃÅ
 ¡¤ÅäÌ×É豸
 ¡¤Ö¸µ¼¼Û¸ñ

ÁªÏµÎÒÃÇ
 
µç»°£º025-83997899
´«Õ棺025-56671585
ÊÖ»ú£º180 6161 5050
ÊÛºó£º159 5055 8388
꿅᣼www.douyam.cn
µØÖ·£º
ÄϾ©ÊÐÆÜÏ¼ÇøÂõ¸ÞÇÅ´´ÒµÔ°¿Æ¼¼Ñз¢»ùµØÒú´ºÂ·18ºÅ
 
 
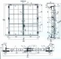
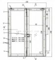
½Ï´ó·À»ðÃÅ  

3.3Ã׽ϴó·À»ðÃÅ
 
3Ã׽ϴó·À»ðÃÅ
 
2.8Ã׽ϴó·À»ðÃÅ
 
2.5Ã׽ϴó·À»ðÃÅ
 
2.4Ã׽ϴó·À»ðÃÅ
 
2.6Ã׽ϴó·À»ðÃÅ
 
½Ï´ó³ß´ç·À»ðÃÅ3030
 
4.2Ã׷DZê·À»ðÃÅ
 
½Ï´ó³ß´ç·À»ðÃÅ4545
 
½Ï´ó³ß´ç·À»ðÃÅGFM1830
 
½Ï´ó³ß´ç·À»ðÃÅGFM2131
 
½Ï´ó¹æ¸ñ·À»ðÃÅ3939
 
3.5Ã׷DZê·À»ðÃÅ
 
3.2Ã׷DZê·À»ðÃÅ
 
½Ï´ó¹æ¸ñ·À»ðÃÅGFM3133
 
·Ç±ê·À»ðÃÅ2823
 
·Ç±ê·À»ðÃÅGFM3624
 
½Ï´ó³ß´ç·À»ðÃÅGFM1527
 
½Ï´ó¹æ¸ñ·À»ðÃÅGFM2424
 
½Ï´ó¹æ¸ñ·À»ðÃÅGFM2430
 
½Ï´ó¹æ¸ñ·À»ðÃÅ2527
 
½Ï´ó¹æ¸ñ·À»ð²£Á§ÃÅ
 
½Ï´ó¹æ¸ñ·À»ðÃÅGFM3036
 
2.9Ã׽ϴó·À»ðÃÅ
 
  Ê×Ò³      ÉÏÒ»Ò³     ÏÂÒ»Ò³     Ä©Ò³     1/2Ò³  ×ܹ²29Ìõ¼Ç¼  µÚ Ò³
°æÈ¨ËùÓУºÄϾ©ÍؼªÏû·ÀÉ豸ÓÐÏÞ¹«Ë¾
µØÖ·£ºÄϾ©ÊÐÆÖ¿ÚÇø±õ½­´óµÀ1ºÅ µç»°£º86-025-56671585
  ËÕICP±¸12018850ºÅ