寻乐吧全国信息论坛,51凤茶楼论坛网,逍遥阁论坛交流,快活林全国楼凤论坛

 
 
 
 
²úÆ·ÖÐÐÄ
 

 ·À»ðÃÅ´°ÏµÁÐ
 
 ¡¤·À»ðÃÅ
 ¡¤½Ï´ó·À»ðÃÅ
 ¡¤·À»ð´°
 ¡¤·À»ð¾íÁ±ÃÅ
 ¡¤µ²ÑÌ´¹±Ú
 ¡¤·À»ð¸ô¶Ï
 Ïû·À¹©Ë®ÏµÁÐ
 
 ¡¤Ïû»ð˨
 ¡¤Ë®Ç¹Ë®ÅÚ
 ¡¤Ë®±Ãϵͳ
 ¡¤ÅçÁÜϵͳ
 ¡¤¸øË®¹Ü·
 Ãð»ð¾ÈԮϵÁÐ
 
 ¡¤Ãð»ðÆ÷
 ¡¤½Ïϸ¸É·Û
 ¡¤ÅÝÄ­Ãð»ð
 ¡¤ÆøÌåÃð»ð
 »ðÔÖ±¨¾¯ÏµÁÐ
 
 ¡¤¸ÐÑÌ̽²â
 ¡¤Éù¹â̽²â
 ¡¤È¼ÆøÌ½²â
 ¡¤»ðÔÖ¿ØÖÆÆ÷
 ¡¤¿ØÖÆÄ£¿é
 ¡¤Ïû·Àµç×Ó
 Æ÷²Ä×°±¸ÏµÁÐ
 
 ¡¤Ë¨ÏäϵÁÐ
 ¡¤Ó¦¼±ÕÕÃ÷
 ¡¤¸öÈË·À»¤
 ¡¤·À»ð¶ÂÍ¿ÁÏ
 ÌØÖÖÃÅ´°ÏµÁÐ
 
 ¡¤ÌØÖÖ¸ÖÃÅ
 ¡¤¸ôÈÈ·À»ðÃÅ
 ¡¤ÈË·ÀÃÅ
 ¡¤ÅäÌ×É豸
 ¡¤Ö¸µ¼¼Û¸ñ

ÁªÏµÎÒÃÇ
 
µç»°£º025-83997899
´«Õ棺025-56671585
ÊÖ»ú£º180 6161 5050
ÊÛºó£º159 5055 8388
꿅᣼www.douyam.cn
µØÖ·£º
ÄϾ©ÊÐÆÜÏ¼ÇøÂõ¸ÞÇÅ´´ÒµÔ°¿Æ¼¼Ñз¢»ùµØÒú´ºÂ·18ºÅ
 
 
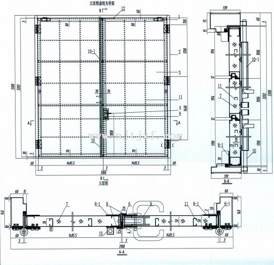
½Ï´ó¹æ¸ñ·À»ðÃÅ  


½Ï´ó¹æ¸ñ·À»ðÃÅGFM3133
ä¯ÀÀ´ÎÊý£º3154´Î


 

½Ï´ó¹æ¸ñ·À»ðÃÅGFM3133ÊÇ3Ã×ÒÔÉÏ·À»ðÃÅÖг£Óóߴ磬ÃÅ¿òÍâ³ß´çΪ3100*3300mm£¬¿ªÆô¾»³ß´ç´ïµ½2900*3200mm×óÓÒ£¬ÊÊÓÃÓÚ´óÐ͹«¹²³¡Ëù¼°¹¤Òµ½¨Öþ¡£

3133¹æ¸ñ·À»ðÃŲÉÓüӺñ¸Ö°å×÷ΪÃÅÌå¿ò¼Ü²ÄÁÏ£¬ÄÚÌîÄÍ»ðÕäÖéÑÒ£¬ ÎÞº¸µã¹¤ÒÕ¸ü¼ÓÃÀ¹Û£¬Îå½ðÅä¼þ°²×°²¿Î»Ìرð¼ÓÇ¿£¬±£ÕÏʹÓð²È«ÐÔ£¬±íÃæÅçËÜ´¦Àí£¬ÑÕÉ«¿ÉÑ¡¡£

½Ï¹æ¸ñ·À»ðÃųߴç´ó£¬ÃÅÌåÖØ£¬ÅäÖÃ¸ß¶ËÆ·ÅÆ·À»ðÎå½ð£¬¼á¹ÌÄÍÓ㬲úÆ·²ÉÓÃË«ÉÈͨ¸ß·½Ê½ÖÆÔ죬ÎÞÐèÁí¼Ó·â¶Â¡¢ÉÏÁÁ£¬ÃÅÉÈÖв¿¿É¸ù¾ÝÏû·ÑÕßÐèÇó¿ªÉè·À»ð¹Û´°¡£

      3.1*3.3Ã׽ϴó·À»ðÃÅÃÅ¿ò²à±Úºñ¶ÈΪ140mm£¬ÃÅÉȺñ¶È58mm£¬¸Ö°å²ÉÓÃ1-1.5mm°å²Ä£¬ÕûÌåÓÃÁϽϹý¹ú¼Ò¹æ·¶ÒªÇ󣬲úÆ·ÄÍ»ðµÈ¼¶Âú×ã¼×¡¢ÒÒ¡¢±ûÈý¸ö¼¶±ðÒªÇó£»³ö³§ÌṩÏà¶ÔÓÚ·À»ðÃżì²â±¨¸æ¡¢µç×ÓÉí·ÝÖ¤¡¢3CÖ¤Ã÷¼°ºÏ¸ñÖ¤¡£

½Ï´ó·À»ðÃų§¼ÒÏà¹ØÍÆ¼ö£º

3.3Ã׽ϴó·À»ðÃÅ

½Ï´ó¹æ¸ñ·À»ðÃÅGFM3036

ÄϾ©ÍؼªÏû·ÀÉ豸ÓÐÏÞ¹«Ë¾

µç   »°£º025-83997899

´«   Õæ£º025-56671585

Ïú   ÊÛ£º18061615050(΢ÐÅͬºÅ)

ÊÛ   ºó£º15950558388

ÒµÎñQQ £º437181679

ÓÊ   Ï䣺njtjxf@163.com

Íø   Ö·£ºwww.douyam.cn( 2 - 5Ã×ȫϵÁзÀ»ðÃŲúÆ·Çëµã»÷µÇÂ¼ÍØ¼ªÏû·À¹Ù·½ÍøÕ¾)


 

  ¡¾ÏÂһƪÎÄÕ£º½Ï´ó¹æ¸ñ·À»ðÃÅGFM2424¡¿  

°æÈ¨ËùÓУºÄϾ©ÍؼªÏû·ÀÉ豸ÓÐÏÞ¹«Ë¾
µØÖ·£ºÄϾ©ÊÐÆÖ¿ÚÇø±õ½­´óµÀ1ºÅ µç»°£º86-025-56671585
  ËÕICP±¸12018850ºÅ