寻乐吧全国信息论坛,51凤茶楼论坛网,逍遥阁论坛交流,快活林全国楼凤论坛

 
 
 
 
产品中心
 

 防火门窗系列
 
 ·防火门
 ·较大防火门
 ·防火窗
 ·防火卷帘门
 ·挡烟垂壁
 ·防火隔断
 消防供水系列
 
 ·消火栓
 ·水枪水炮
 ·水泵系统
 ·喷淋系统
 ·给水管路
 灭火救援系列
 
 ·灭火器
 ·较细干粉
 ·泡沫灭火
 ·气体灭火
 火灾报警系列
 
 ·感烟探测
 ·声光探测
 ·燃气探测
 ·火灾控制器
 ·控制模块
 ·消防电子
 器材装备系列
 
 ·栓箱系列
 ·应急照明
 ·个人防护
 ·防火堵涂料
 特种门窗系列
 
 ·特种钢门
 ·隔热防火门
 ·人防门
 ·配套设备
 ·指导价格

联系我们
 
电话:025-83997899
传真:025-56671585
手机:180 6161 5050
售后:159 5055 8388
网址:www.douyam.cn
地址:
南京市栖霞区迈皋桥创业园科技研发基地寅春路18号
 
 
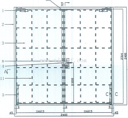
较大规格防火门  


较大规格防火门GFM2424
浏览次数:3280次


 

GFM2424是指宽高2.4米钢质防火门,是很多建筑物中消防疏散安全通道常用尺寸,产品耐火等级涵盖甲、乙、丙三个级别。

 

2400mm*2400mm属于较大规格防火门系列产品,门体框架部分主要采用镀锌钢板和不锈钢板制造,内部填充耐火隔热材料,边框缝隙处镶嵌防火密封条,一旦发生火灾可为火场中人抢险救援工作的开展提供宝贵时间。

 

2米4防火门采用平板双扇对开方式制作,门扇开启尺寸可以达到2300mm*2300mm左右;无需另外增加亮窗、封堵;表面喷塑工艺,自然柔和,坚固耐用;配备高性能防火五金件,整体性能达到防火门规范标准。

 

2.4米较大防火门尺寸较为固定,也可根据消费者使用需求定制其他规格,产品采用一门一证制度,提供相应的电子身份证、检测报告、合格证及防火门3C强制性认证等资料,确保品质。

 

较大尺寸防火门

2.4米较大防火门

3米较大防火门

南京拓吉消防设备有限公司

   话:025-83997899

   真:025-56671585

   售:18061615050(微信同号)

   后:15950558388

业务QQ :437181679

   箱:njtjxf@163.com

   址:www.douyam.cn( 2 - 5米全系列防火门产品请点击登录拓吉消防官方网站)

 

 

  下一篇文章:较大规格防火门GFM2430  

版权所有:南京拓吉消防设备有限公司
地址:南京市浦口区滨江大道1号 电话:86-025-56671585
  苏ICP备12018850号