寻乐吧全国信息论坛,51凤茶楼论坛网,逍遥阁论坛交流,快活林全国楼凤论坛

 
 
 
 
产品中心
 

 防火门窗系列
 
 ·防火门
 ·较大防火门
 ·防火窗
 ·防火卷帘门
 ·挡烟垂壁
 ·防火隔断
 消防供水系列
 
 ·消火栓
 ·水枪水炮
 ·水泵系统
 ·喷淋系统
 ·给水管路
 灭火救援系列
 
 ·灭火器
 ·较细干粉
 ·泡沫灭火
 ·气体灭火
 火灾报警系列
 
 ·感烟探测
 ·声光探测
 ·燃气探测
 ·火灾控制器
 ·控制模块
 ·消防电子
 器材装备系列
 
 ·栓箱系列
 ·应急照明
 ·个人防护
 ·防火堵涂料
 特种门窗系列
 
 ·特种钢门
 ·隔热防火门
 ·人防门
 ·配套设备
 ·指导价格

联系我们
 
电话:025-83997899
传真:025-56671585
手机:180 6161 5050
售后:159 5055 8388
网址:www.douyam.cn
地址:
南京市栖霞区迈皋桥创业园科技研发基地寅春路18号
 
 
较大规格防火门  


较大规格防火玻璃门
浏览次数:5396次


 

防火玻璃门因其内部主要采用大面积防火玻璃而得名,摆脱了传统防火门功能单一问题,它可以集防火与美观于一体,实现耐火、透明、采光的作用;是商业建筑的选择,广泛应用在各大商场、写字楼、宾馆、会所等部位。

 

玻璃防火门框架采用金属制作,一般为镀锌钢板或者不锈钢材质;内部镶嵌A级灌浆防火玻璃,厚度可达到26-30mm,由于玻璃内部灌有防火液,较为沉重,门框及门扇边框必须采用坚固耐用型材。

 

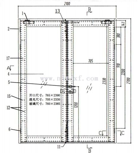
一般此类大玻璃防火门尺寸为单扇1000*2300mm以内;双扇不较过2100*2300mm;除去边框材料内部玻璃净尺寸大约在600*1900mm左右,可以满足绝大多数场所使用需求。

 

拓吉较大规格防火玻璃门门体规格达到2100*2700mm;同时边框范围缩小,玻璃面积增大,单块玻璃面积可以达到760*2385mm,透光面积为700*2330mm左右,为非标较大防火门洞口提供了合适的产品。

 

较大尺寸防火玻璃门厂家相关推荐:

防火玻璃门

较大防火门

南京拓吉消防设备有限公司

电   话:025-83997899

传   真:025-56671585

销   售:18061615050(微信同号)

售   后:15950558388

业务QQ :437181679

邮   箱:njtjxf@163.com

网   址:www.douyam.cn( 2 - 5米全系列防火门产品请点击登录拓吉消防官方网站)


 

  下一篇文章:较大规格防火门GFM3036  

版权所有:南京拓吉消防设备有限公司
地址:南京市浦口区滨江大道1号 电话:86-025-56671585
  苏ICP备12018850号